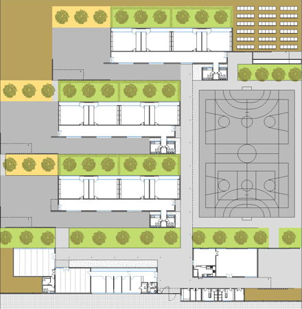
ESCUELA PÚBLICA MODULAR PARA PERÚ
PROYECTO BÁSICO DE ESCUELA PÚBLICA TIPO.
PROMOTOR: MINISTERIO DE EDUCACIÓN DE PERÚ
SUPERFICIE PARCELA: 9.000,00 m2
SUPERFICIE CONSTRUIDA: 2.103,00 m2
P.E.M. 3.835.910,00 S/.
Descargar Portfolio con más información














